
关于装修的各个细节我有大概30篇文章分别详细讲了,需要的可以关注我随时翻阅,本文主要就是从思路和设计的流程来讲一下装修的过程,包括如何设计、选购电器、细节注意等,全文近万字,喜欢的可以先收藏,谢谢支持!
和媳妇相恋6年,有了宝宝所以刚刚从大魔都滚回了青岛,想有一个属于我们的家过上面朝大海天天吃土的日子。我俩是姐弟恋,她是我12年骑车环青海湖拐回的土家族学姐,我们已经有了可爱的宝宝。所以家中的收纳一定要做足,目前全屋收纳空间大约相当于170个28寸标准箱!
因为都喜欢旅行,都特别希望有一个整体的公共空间,所以我们家除了两个卧室和洗手间外其他空间都被打通在一起。
房子位于25楼不是顶楼但是采光可以了,最大的缺陷就是公摊面积太大,使用面积只有49平可以说做两室已经很紧凑了,但我还是实现了我的8m书架、1.8餐桌和中岛厨房。
费用分了四个部分最后有明细:硬装56000、定制家具34000、软装23000、电器60000.因为有些还没弄完总共预计180000以内。
1、有个拥有开放式厨房的执念,首先就想要一个拥有大中岛的开放式厨房。
2、我比较喜欢看闲书,同时又希望以后宝宝能有个看书的习惯所以希望有个很大的书架。
3、很希望可以一家人一起做事,所以要有个足够大的桌子可以做手工,看书,吃饭等。
4、面积比较小喜欢往家里带东西又有了宝宝,所以需要足够的储物空间。
5、经历了租房子每次洗完澡都要擦地(关键这活是我干),所以洗手间一定要干湿分离。
二、户型改造
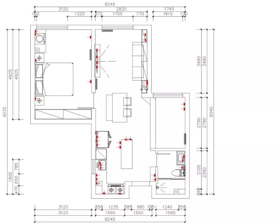
原始户型图
【砸墙】
1.砸掉了厨房两面墙外加储物间一面墙形成一个开放式厨房。
2.进门处的洗手间墙砸了内推让出了书架的空间。
3.把次卧的墙砸了,让次卧和开放式厨房形成一个大的空间作为客厅和餐厅。
4.主卧门旁边的墙砸了,改动门的位置让出主卧衣柜的位置。
5.砸掉阳台与主卧之间的墙让卧室的面积更加的开阔,阳台有烘干机所以不需要晾衣服。
6.阳台设备间的墙砸掉然后封窗让主卧更加方正。
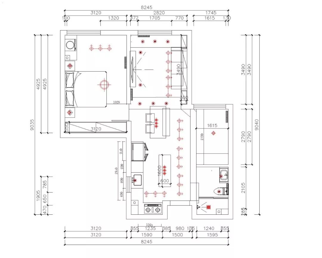
1.以前很小的厨房变成了一个大的开放式厨房。
2.客厅餐厅更加规整,同时缩小了次卧面积一直认为公共面积需要大点。
3.主卧和阳台一体后空间利用率明显增加不会被墙隔的很零散。
4.洗手间可以通过淋浴房实现干湿分离。
5.除私密空间外其他地方形成了一个整体的空间。
1.整面的书架隔出了次卧的位置。
2.洗手间墙体后退后建了薄的新墙用来防水。
3.主卧原来的门处建薄墙,形成一个壁笼用来挂黑板(不用黑板漆是喜欢黑板的边框和质感)。
1.因为要实现干湿分离,所以马桶移位用了直冲马桶目前没问题。
2.强电箱在需要砸的墙上所以强电箱移位同时增加了回路,一般基础的回路有(灯、普通插座、厨房插座、卫生间、空调多个、冰箱)如果不够最好前期增加。
3.弱点移位因为次卧改了客厅,如果要拉网线一定要拉两条好像盒子也需要。
01
玄关没有很多要说的,就是洗手间门内推让出书架的空间,然后做了鞋柜。
大门已经换了金刚鹦鹉的指纹锁(知道安全有隐患但是锁防君子不防小人意思一下就好,自己装的),大门颜色买的灰色毛毡把门贴上。
鞋柜上下都预留了各一个插座用于烘鞋器等。
单人做饭:从水盆到小台面最后集成灶,形成洗菜—切菜—炒菜的流程。
单人烤甜点:从冰箱到中岛操作最后烤箱,形成取原料-处理-烤制的流程。
双人做饭:一人负责集成灶炒菜,一人负责洗菜和中岛处理食材。
多人做饭:一人负责集成灶炒菜,一人负责水池洗菜,一人中岛站走廊那边处理食材,一个人中岛走廊方向整理碗筷,还可以一个使用烤箱烤制或中岛做冷菜。可同时5-6人同时使用而不会太拥挤。
使用火星人集成灶,上边的开放格放调料,右手边挂各种勺子,左手边挂锅盖。
左下的小空间内是集成灶的带开关插座和燃气开关,左上是燃气表都被完美的收纳在吊柜中。
燃气热水器上是挂纸的磁性架子,落下的厨房用纸会挡住各种管道。
上方插座专供燃气热水器,下方两组一组带开关为小米热水壶,一组插座备用。
旁边的烟道上是放平时各种塑料袋的收纳盒,磁性刀架收纳刀具确实很好用。
可抽拉的龙头配一体化大单盆,台盆下放置垃圾处理器,净水准备后期装RO净水器。
电器高柜:从下往上是洗碗机、烤箱,烤箱上方准备做垂直收纳。
冰箱高柜:放置对开门冰箱,冰箱贴是各地去玩带回来的。中岛侧面一个带USB的插座,一个普通插座满足中岛各种用电需求,包括餐桌的用电需求。同时两边配一个毛巾杆可以搭个布擦中岛和餐桌。
中岛整体尺寸是160cm*65cm,内部设计六个抽屉,两个抽拉层板,一个下拉门。
灯光设计最初是设计的轨道吊灯,安装感觉略为拥挤,后有改为轨道射灯。
抽屉设计
抽拉层板
关于厨房的插座:
冰箱后边四组插座,一组16A为烤箱准备,一组单独回路为冰箱准备,一组为戴森吸尘器准备,一组为石头拖地机器人准备。
水池下方三组插头,垃圾处理器、净水器、洗碗机。同时为洗碗机留了一个出水口就不需要三通了,下水有垃圾处理器配的多用下水。因为水盆下有垃圾处理器、RO净水、前置过滤器所以暂时不打算放东西。
集成灶上一个插座装烟雾报警器,集成灶下装了一个插座用于集成灶。燃气热水器边一个插座用于热水器,桌面上有两个插座灵活使用。
两个宜家吊灯配1.8m白橡木桌,椅子混搭y椅(水曲柳)和温莎椅(白橡木)都是二手,准备再配把仿索耐特18号椅,宜家绿色塑料椅和宜家白色儿童椅。
餐桌后没有放餐边柜,利用之前卧室门的空准备挂一个大黑板。旁边的厨房高柜板处准备挂戴森吸尘器地上放石头机器人。
用纸壳子比划桌子大小。
客厅开间很短只有2.7m所以索性不打算让孩子在客厅玩,活动就去室外反正青岛有沙滩。在客厅放了一个沙发床平时就展开一半,配上投影仪躺着看绝对爽,因为觉得每次卷幕布会皱而且卷起来也是空着所以索性装了一个固定幕布。
客厅有几个失误,首先没做窗帘盒,其次因为梁的原因吊了两边顶不好看,应该全吊顶好了。反正客厅作用就是躺着看投影的,矮点也无所谓。
书架是家里单体最大的一个定制家具了,包括沙发后3.5m和厨房餐厅的4.6m,共8.1m的一个大玩具。其中分为进门处1m左右的鞋柜和次卧与洗手间两个隐形门。
次卧隐形门上边挂个软木板放照片,洗手间隐形门上边是权利的游戏拼图,下边学习权游的学城做一个锁链书架
和次卧相隔的书架没有做到顶,因为觉得如果到顶会很压抑,而且不通风也不透光,次卧没有装风管机打算靠客厅的3p风管机制冷。
书架处皆为3000k色温的灯光,实景比图片更加温馨。
洗手间很小但是也做了干湿分离,五金本来箭牌或九牧的后来加了几个装修群发现好点的品牌双十一也不贵,金厨银卫建议加点钱换好五金。
干区是普通下水,淋浴下水是长条形下水(漏水很快),水龙头和浴巾架是汉斯格雅的,花洒是高仪的(280顶喷很爽可以两个人一起洗),马桶和镜柜就是随便买了个(插座上下各一个都留在柜子里了)。
马桶边留了智能马桶盖的插座,配了个喷枪很好用再也不用马桶刷了哈哈。
家里本来想要灰白的北欧风,后来被黑蓝金的配色给毒了于是就打算在主卧试试了。同时主卧搭配了丝绒的拖地窗帘,除了卫生不好打扫以外没缺点。
门加高到2.4m让空间看起来更高一些。
床头深蓝色背景墙,配上胡桃木色床,床头灯两边设计不同款式,分别用于看书和玩手机,一个黑色一个黑金色。
阳台柜的设计是洗衣机和烘干机叠着放。边上还有一个小空间做了个开放式格子平时看不见,但是可以放很多的洗衣用品等。阳台和主卧是整个一体的因为有了烘干机所以不需要晾衣服了,但是怕偶尔用一下就装了一个不显眼的黑色固定晾衣杆。
定做的胡桃木色床头柜加DIY的胡桃木皮带搁板,和胡桃木色的床超级配。丝绒拖地窗帘也是大爱,和老婆争取了很久才让拖地的哈哈。
衣柜内部设计可以看一下设计图和正面照片,6抽屉4拉篮1搁板抽1裤架1镜子,大多都是宜家的。最右边收纳冬季夏季长款、中间普通外套、左边半截西服衬衣半截毛衣。但是上边空间留的空有点太大了不是很合适,我把上边的搁板取消了变成了一个大空间失误了。
阳台水电
儿童房就是用书架隔出来的,是以前的客厅。因为很小只有1.6m*2.6m所以就做了全屋榻榻米,在床尾做了一个衣柜。
这是榻榻米尾部的衣柜,比较简单做了9个抽屉收纳各种东西特别好用,其他地方就是规规矩矩的挂衣区和搁板区,没有用柜门直接挂了一层比较厚的白纱效果还不错。
【灯光、插座】
厨房:灯光布置统一4000k射灯配的双头灯也是4000k,本来中岛上是自己改了4个轨道吊灯,但因为餐桌上还有两个吊灯感觉太挤了就换掉了,还是用射灯来照明。
餐厅:两个宜家白色吊灯2800k色温,吊的比较低离地170不到显得比较温馨。
客厅:客厅灯光是两个黑色双头灯和黑色轨道灯都是3000k的平时开,6个筒灯4000k有老人来的时候开因为暗了他们看不清。
书架:配了一排轨道灯统一3000k的色温,一开灯整个书架的氛围立马不同。
洗手间:灯光是4000k色温,一个筒灯、一个吸顶灯、一个镜前灯。筒灯和吸顶灯开关在门外、镜前灯开关在镜柜内。
主卧:主卧灯光布置为一个主灯3000k、两个床头灯3000k、一个三头阳台灯2800k。主灯和阳台的三头灯是双控灯。
儿童房:次卧灯光比较简单就一个吸顶灯,开关双控床头和门外各一个。
玄关:上下各1个,上边后期可装灯,下边可装烘鞋器,共2个。
厨房:集成灶下柜内1个、集成灶上传感器1个、燃气热水器1个、备用2个、水池下3个、冰箱后4个、中岛4个带3个USB,共16个。
客厅:幕布下配了4个插座好像配多了,共4个。
书架:每边各配了2个插座,每边各带3个USB接口,共4个。
洗手间:镜柜内1个,洗脸池下1个,马桶边上1个,共3个。
主卧:床两边各1个各带3个USB,床脚一个,共3个。
阳台:洗衣机处2个,对面1个,共3个。
儿童房:床头2个带3个USB接口。
全屋共37个插座,18个USB接口,虽然插座不是特别多但每个需要插座的地方都预留了应该是不需要插排了。
1.基本上当初设想的东西都做到了大书架,大中岛,大餐桌。
2.有足够多的储物空间宝宝再多东西也不怕了,计算了下170个28寸标准箱容积。
1.书架很糟心很多细节很差以后千万注意太自信的师傅要小心。
2.很多品牌的安装都是外包,第一个高仪的安装来安装我顺便给他钱让他帮忙安装别的可以说是装的一团糟(很多不可逆的错误,高仪花洒本身也不太会装),投诉后高仪又派了个师傅装的就很完美。
