研集明选·晒家丨大白墙配上木地板,真是越看越喜欢!

今天造叔给大家分享一个纯正到不能再纯的北欧装修案例,一百平三室两厅,整体装修舒适自然却不失格调,相信大家一定会喜欢!
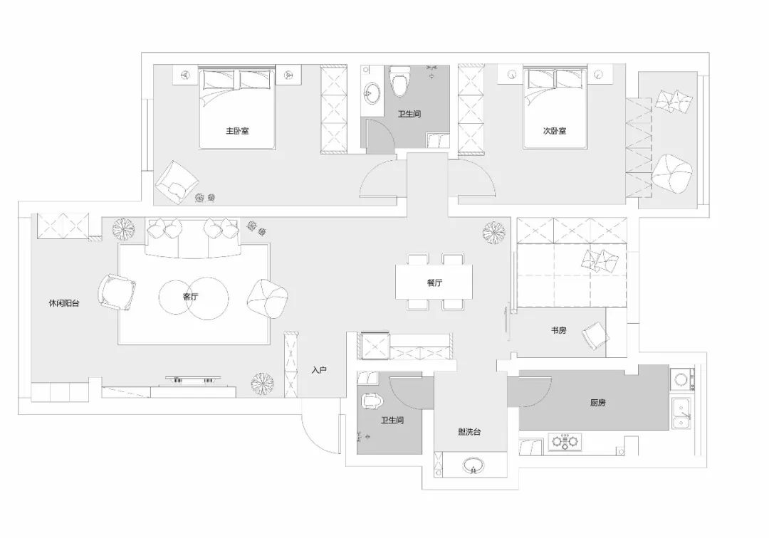
房屋信息
户型:三室两厅两卫
面积:108㎡
风格:北欧
设计:清羽设计
户型图
户型格局方方正正,室内格局划分还算合理。造叔唯一想吐槽的是厨房和卫生间的竟然直面相对?从风水的角度上来说,这样的做法十分欠妥,与其这样还不如直接舍弃入户边上的洗手间。
玄关
进门的地方利用到顶鞋柜做了个隔断,避免进门一眼就能望尽客厅的尴尬。
客厅
经典的北欧配色,纯白简单的大白墙,浅色的木质地板,灰色的沙发家居,整个空间充斥着一种简约的高级感,几株绿植也让空间多了几分自然和清新。
胡桃木的圆茶几,一把座椅,一株绿植一杯茶,不论接待客人还是家人学习休息都是不错的区域。
金属质感的壁灯和花盆上下呼应着,加上墙上这副充满意境的楼梯转角装饰画,足以让人止步欣赏一番。
在纯白的文化墙上设计了两层搁板,不但可以收纳,放置的装饰盆景绿植还能起到装饰的作用。捧一本书,喝一杯茶,沐浴着阳光应该算是一件惬意的事情。
餐厅
在餐厅做了嵌入式的纯白餐边柜,更好地和大白墙融合在了一起,收纳装饰两不误。
餐厅里面就是书房,使用了仓谷门的设计,视觉上显得更加的别具一格!
虽然只是书房,但也可以当成小卧室,来个朋友亲戚都不是事儿。看似简简单单的书房,实际上他的收纳能力绝对不差,一面墙的壁橱也足够收纳一些被子或者不常用物品了。
厨房
青蓝色橱柜清爽中还散发着几分惊艳,温柔气息爆棚。L型的厨房设计使得厨房的利用空间大大提升。厨房地板的铺设也采用了“人”字型铺法,给人一种地面流动的延伸感。
卧室
垂吊式床头灯,灵活性高。木色床头柜+木色睡床+木色地板,整个空间自然感强。当屋主一进入卧室,相信一天紧绷的神经能放松下来好好休息,心情变愉悦!
大大的白色顶天立地衣柜,估计收纳上百件衣服也不是问题了。
次卧的面积虽然不大,但是自带一个封闭式阳台设计,装上榻榻米,一个小休闲区就有了。
卫生间
卫生间有两个洗手台,大一点的放门外,这样早晨即使有人在使用卫生间,也不耽误其他人刷牙洗漱。
墙面一半贴白砖,一半贴黑砖,黑白搭配永远的经典,层次分明让卫生间显得很有格调感。
