研集明选·晒家丨轻宅居,和喜欢的一切在一起

第一次体验装修,从一开始设想的日式,到后来慢慢转向北欧,好像经历了一场自我发现之旅。
每一次做选择,都多认识自己一点,发现原来自己更想要什么样的生活、以及是一个怎样的人。
而最后的作品,虽然不无遗憾,却带着独属于自己的独一无二的风格。
入住之后,也在一点一点丰富和调整这个居住空间。
很喜欢一句话:喜欢的东西到手之后,才是一决胜负的开始。
家应该是一个慢慢填满而且不断变化的地方,永远都是进行时,一直都有小惊喜。

是不是已经知道是谁了~?来,让我们解锁瑶瑶的美家吧。
以下行文by YOYO



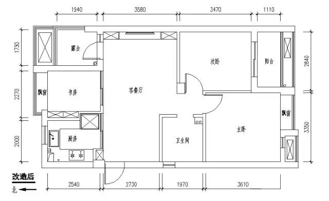
↑ 户型图
建筑面积89平米,套内大概80平米。
优点是南北通透,方方正正。缺点是客厅只有朝北的露台可以采光,几乎暗无天日。
户型改造主要是三点:
1.把北面两个房间和客厅之间的墙敲掉,改成大面积玻璃移门,改善客厅采光,增加空间通透感;
2.厨房的墙重新砌,拓宽厨房的同时,巧妙创造出冰箱和书架互嵌的空间;
3. 占掉厨房一角做出通高鞋柜,部分弥补了没有玄关的缺陷。
目前的家具布置图。目前只有两个人住,北面的卧室作为书房+宠物房。
一、客 厅

户型没有条件做玄关,打开门,小小客餐厅一览无余。回家看到眼前的一切就心生欢喜。
温暖妥帖,足以慰藉人心。

买房前就心心念的整面书架的电视墙,这大概是这次装修最早确定的部分。
作为一个理工科女生,却一直有读书人的情结。
用时光慢慢填满这面墙,最能给人生以没有流于世俗的安全感。
有空调进风口所以柜子没办法做到顶,打算以后搭个梯子让两只猫上去玩~

电视墙局部。某个周末,透过窗纱的温柔的光。

两组细框移门,不但可以改善客厅采光,同时也是客厅的一个视觉重点,
还可以增加厨房、书房和客餐厅的空间互动。
进门的通高鞋柜做了整扇的镜面门,进一步延伸了空间感。

从书房看客厅,墙面空无一物看久了也很舒服。
考虑在这面白墙上搭个通向电视墙顶部的梯子,以后再慢慢丰富。

沙发距离电视墙太近,茶几没有采用现在流行的一大一小组合。
而是小圆几再搭配两个蒲团,蒲团平时摞起来,可以放东西,有朋友来时还可以用来坐。
二、餐 厅

餐厅整体图
背后的柜子里藏着强电箱弱电箱,放备用的猫砂猫粮猫罐头,
玻璃门里距离两个酒鬼想要的琳琅满目还差很远。
矮柜台面上本来想放水壶水杯,但是现在变成了进门随手放包和钥匙的地方,
饮水区就转移到餐桌上,平时喝水反而更方便。
收纳和摆放的第一要义就是,东西要放在最顺手的地方

三、厨房

厨房整体图
墙面地面都是水泥砖,下柜原木色,上柜用白色提亮,比较不压抑。
左边台面是正常60cm深度,右边台面是46cm,
放一些厨房电器,台面下还专门留了空档放宜家小推车。


备餐区,台面有限,尽量所有东西都上墙。
四、卫生间

卫生间平面布局(图中尺寸都是贴砖后),布置方案是自己想的。

因为不能封阳台、所以想把洗衣机塞到卫生间里,为了节省空间,用了折叠门。


松下的三门镜柜,购自实体店。
右边是卸妆&洗漱区,左边是护肤品区,中间是面膜&身体护理&乱七八糟囤货区,
尽量做到每次只需要开一扇门。
不得不说镜柜的收纳力太强了,而且关上门所有凌乱消失不见不见~
五、卧室


主卧整体图,床头简单的刷了灰色。
床是抽屉储物床。装饰画还没挂,一直不忍心钉钉子,觉得这样摆着也很好看。

米色窗帘和衣柜门颜色呼应

衣柜内部柜体是木工现场做,衣柜门是松下的折叠壁橱门,
结合了推拉门和开门的好处,也是值得推荐的好物。
六、阳台


尽全力也拍不全的小小的南阳台。无比庆幸临时决定把做好的柜子改掉做了个小台盆,
种花用水特别方便。挂了风铃,装了折叠小桌板,小阳台有小阳台的玩法。
当初不满意的阳台,一点一点变成了别人心中“理想阳台的样子”。
我的日常

晒猫


以及 小情趣~


按想要的生活打造了一个容器,但还需要花时间,在这里生活成自己想要的样子。

和,喜欢的一切,在一起。
